VILLA SAN MAURO

VILLA SAN MAURO E’ L’ENNESIMA RISTRUTTURAZIONE A 360 GRADI CHE DIMOSTRA QUANTO IMPEGNO E COMPETENZA METTIAMO NEL NOSTRO LAVORO!

 

Per rimettere a nuovo questo edificio e dargli un tocco di design sono state necessarie tante lavorazioni. 

Fondamentale anche la collaborazione e il supporto avuti con il progettista architettonico Enrico Ferretti e il progettista strutturale Gilberto Zoffoli . 

 

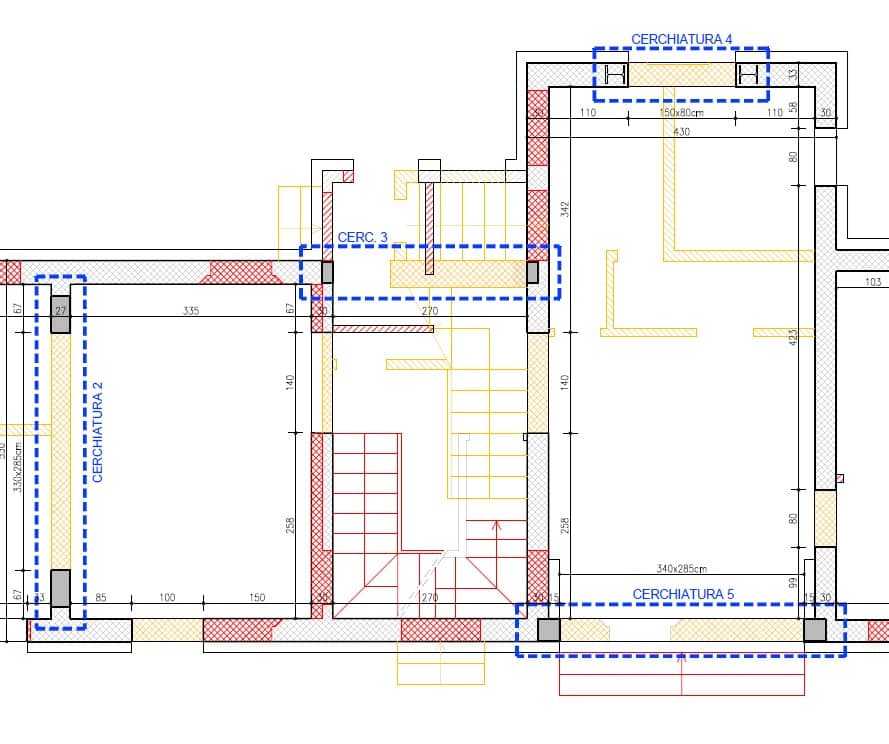
Qui sotto troverete tutte le foto della trasformazione PRIMA-DOPO ma anche gli schemi dei principali interventi eseguiti. 

OBBIETTIVI:

L’obbiettivo dei clienti era eliminare il maggior numero di pareti divisorie e aperture esistenti inutili per creare ambienti più spaziosi, minimal e luminosi. 

Altro obbiettivo non meno importante era incrementare la classe sismica dell’edificio. 

MISURE ADOTTATE:

  • Demolizioni 
  • Rinforzo delle fondazioni con cordolatura 
  • Formazione di nuovi solai e solette
  • Ammorsamenti e Perforazioni armate
  • Cerchiature murarie 
  • Realizzazione di nuove murature portanti e non

RICHIEDI UN PREVENTIVO

Cerchi un’azienda in grado di realizzare il tuo progetto?

Contattaci tramite il form oppure utilizza uno dei nostri recapiti qui di seguito per parlarcene.